TOTAL LANDSCAPE DESIGN PROCESS
INITIAL ONSITE CONSULT
Our design process commences with an initial onsite consult with Lynley to walk around your property and discuss the scope of your project and your aesthetic style and goals.
BRIEF AND QUOTE
Following on from your consult we provide a brief, outlining the scope of your project, the specific inclusions in your plan and the total plan cost. For consultancy only see below.
SITE SURVEY
Work commences with a site survey. For detailed projects or projects with technical or slopping sites we can utilise our drone to produce high quality 2D images of your site.
CONCEPT PRESENTATION
We present your initial detailed 3D concept plan at a meeting at our office. This meeting is an opportunity for feedback, alterations and decisions. Additional meetings can be planned.
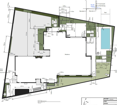
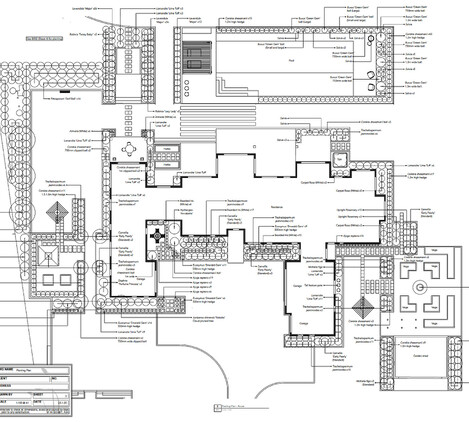
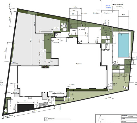
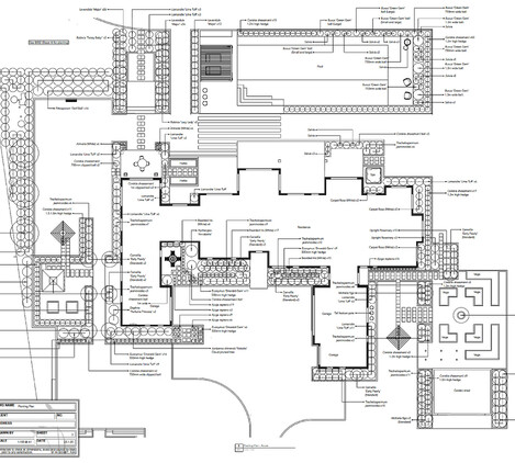
MASTER PLAN
Your master plan includes everything required for completion of your project including the overall plan, 3D imagery, a planting plan (if any), and a full set of working drawings for use by your contractor.
ADDITIONAL SERVICES
CONSULTATION SERVICE
Lynley provides a consultation service for general onsite advice, planting advice or for simply bouncing ideas. Contact Lynley for her consult rate.
POOL DESIGN SERVICE
If you wish to have only your swimming pool area designed we offer this tailored design service. Our design process will follow the same steps as set out above.
DRONE SERVICE
We provide drone services to survey and map your section providing high quality 2D images of your property - particularly useful if selling your property.













